
蝶阀知识
阀门首页 > 阀门知识 > 蝶阀知识 > 
1、法兰式蝶阀多了两片法兰,对夹式少了两片法兰,当然价格也便宜一些,价格大概为法兰蝶阀的2/3。
2、法兰蝶阀比对夹式蝶阀的连接更可靠。对夹式蝶阀安装时不如法兰蝶阀方便,因为需要另外配法兰片,装不好还容易漏。

对夹蝶阀是属于对夹式的,用于小口径阀门的,法兰蝶阀是法兰式的,用于大口径阀门,它们的链接方式不一样,都是用来截流跟调节使用的。对夹式的阀门门螺栓长度较长,对施工精度要求较高,如果两面的法兰不对中,螺栓会受到较大的剪切力,阀门容易泄漏。对夹式的阀门螺栓一般比较长 ,在高温的工况下,螺栓膨胀后有可能会导致泄露,所以高温工况下不适宜用于大管径。而且对夹式蝶阀-般不能用于管线的末端和下游需要拆卸的场合,因为当下游的法兰拆卸下来的时候,对夹式的阀门会掉下来,这种情况就必须要在另外做短节以便拆卸,而法兰式蝶阀不存在上面的问题,但是成本会比较高。

对夹式蝶阀阀体两端没有法兰,只有几个导向螺栓孔,阀门用一组螺栓螺母与端的法兰连接。相比之下,拆卸要方便些 ,阀造价较低,但缺点是一个密封面出问题 ,两个密封面都得拆开。
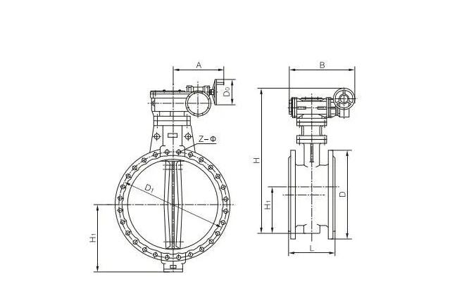
法兰式蝶阀阀体两端分别有法兰,与管法兰连接。密封相对更可靠一些,但阀造价比较高。


1、价格方面,对夹式的便宜,价格大致为法兰的 2/3。选进口的阀门时,尽可能用对夹式,价格便宜。重量轻。
2、对夹式的阀门螺栓长度较长,对施工精度要求较高,如果两面的法兰不对中,螺栓会受到较大的剪切力,阀门容易泄漏。对夹式的阀门螺栓一般比较长,在高温的工况下,螺栓膨胀后有可能会导致泄露,所以高温工况下不适宜用于大管径。而且对夹式蝶阀一般不能用于管线的末端和下游需要拆卸的场合,因为当下游的法兰拆卸下来的时候,对夹式的阀门会掉下来,这种情况就必须要在另外做短节以便拆卸,而法兰式蝶阀不存在上面的问题,但是成本会比较高。
3、对夹式蝶阀阀体两端没有法兰,只有几个导向螺栓孔,阀门用一组螺栓 /螺母与端的法兰连接。相比之下,拆卸要方便一些,阀门造价较低,但缺点是一个密封面出问题,两个密封面都得拆开。法兰式蝶阀阀体两端分别有法兰,与管法兰连接。密封相对更可靠一些,但阀门造价比较高。
上一篇:dn700的电动蝶阀安装尺寸及阀手轮能调整方向吗 / 下一篇: dn700的电动蝶阀安装尺寸、dn700电动通风蝶阀发货