
调节阀
阀门首页 > 产品展示 > 调节阀 > 





ZDLM型电子式电动套筒调节阀:由PS系列或3610系列直行程电动执行机构和低流阻直通单座阀组成。(也可配其它品牌直行程执行机构)。电动执行机构为电子式一体化结构,内有伺服放大 器,输入控制信号(4-20mADC或1-5VDC)及电源即可控制阀门开度,达到对压力、流量、液位、温度等工参数的调节。具有动作灵敏、连线简单、流 量大、体积小、调节精度高等特点??刂凭群托阅鼙菵KZ型有明显提高。
| 公称通径DN | 25 | 32 | 40 | 50 | 65 | 80 | 100 | 125 | 150 | 200 | 250 | 300 | |
|---|---|---|---|---|---|---|---|---|---|---|---|---|---|
| 阀座直径dn (mm) | 25 | 32 | 40 | 50 | 65 | 80 | 100 | 125 | 150 | 200 | 250 | 300 | |
| 额定流量系数Kv | 10 | 20 | 25 | 40 | 63 | 100 | 155 | 250 | 370 | 580 | 900 | 1300 | |
| 行程mm | 16 | 25 | 40 | 60 | 100 | 100 | |||||||
| 公称压力(MPa) | 1.6,2.5、4.0、6.4MPa | ||||||||||||
| 阀体可选材质 | WCB、CF8,CF3,CF3M,CF8M | ||||||||||||
| 阀芯可选材质 | 304,316 | ||||||||||||
| 允许压差△MPa | ≤公称压力MPa | ||||||||||||
| 流量特性 | 等百分比特性,线性特性和快开特性 | ||||||||||||
| 基本误差% | ±2.5 | ||||||||||||
| 回差% | 2.5 | ||||||||||||
| 死区% | 1.0 | ||||||||||||
| 始终点偏差% | ±2.5 | ||||||||||||
| 额定行程偏差% | 2.5 | ||||||||||||
| 允许泄漏量Q | Kv值的0.05% | ||||||||||||
| 可调范围 | 50:1 | ||||||||||||
| 配电动执行器型号 | PSL | PSL201 | PSL202 | PSL204 | PSL208 | PSL312 | |||||||
| 3810L | SA-08 | 381LSA-20 | 381LSB-30 | 381LSB-50 | 381LSC-65 | ||||||||
| 公称压力介质温度阀体材料 | 1.6MPa | 常温-20℃~+200℃ 铸铁HT200 | |||||||||||
| 4.0MPa | 常温-20℃~+200℃ 铸钢WCB 铸不锈钢CF8,CF3 | ||||||||||||
| 中温-40℃~+450℃ 铸钢WCB 铸不锈钢CF8,CF3 | |||||||||||||
| 6.4MPa | 常温-20℃~+200℃ 铸钢WCB 铸不锈钢CF8,CF3 | ||||||||||||
| 中温-40℃~+450℃ 铸钢WCB 铸不锈钢CF8,CF3 | |||||||||||||
一、① 电子式电动套筒调节阀产品名称与型号② 电子式电动套筒调节阀口径③是否带附件以便我们的为您正确选型。
二、若已经由设计单位选定上海湖泉的 电子式电动套筒调节阀型号,请按 电子式电动套筒调节阀型号直接向我司销售部订购。
三、当使用的场合非常重要或环境比较复杂时,请您尽量提供设计图纸和详细参数,由我们的湖泉阀门专家为您审核把关。
感谢您访问我们的网站【http://www.5735p.cn/】,如有任何疑问.您可以致电给我们,我们一定会尽心尽力为您提供优质的服务。
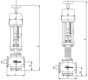
| DN | L | H1 | H | ||
|---|---|---|---|---|---|
| PN(MPa) | 常温 | 中温 | |||
| 1.6 | 6.4 | ||||
|
25 |
185 | 200 | 110 | 704 | 855 |
| 40 | 220 | 235 | 125 | 747 | 898 |
| 50 | 250 | 265 | 131 | 755 | 906 |
| 65 | 275 | 295 | 171 | 835 | 986 |
| 80 | 300 | 320 | 189 | 882 | 1033 |
| 100 | 350 | 400 | 208 | 920 | 1071 |
| 150 | 450 | 550 | 275 | 1117 | 1332 |
| 200 | 550 | 670 | 320 | 1310 | 1516 |
| 250 | 640 | 810 | 390 | 1420 | 1626 |
| 300 | 880 | 950 | 450 | 1520 | 1726 |
![]() |
| ZDLM型电子式电动套筒调节阀结构图 |
|---|
上一篇:ZDJV、ZKJV系列电动V型调节阀 / 下一篇:ZDLP型电子式电动单座调节阀