51一品茶楼,全国茶楼信息网论坛免费网站,淡水一品香论坛qm网,湖南一品楼qm论坛

全国服务热线021-64162222

防爆球阀阀门首页 > 产品展示 > 球阀 > 防爆球阀 >

产品名称:矿用本安型防爆电动球阀[ 2019-10-15 ]

订购热线:021-64162222
订购传真:021-62677999
质量稳定:实行全过程质量监控,细致入微全方位检测!
价格合理:高效内部成本控制,减少了开支,让利于客户
交货快捷:先进生产流水线,充足的备货,缩短了交货期!
  • 产品介绍
  • 规格尺寸
  • 结构图片
  • 一、矿用本安型防爆电动球阀介绍

    矿用本安型防爆电动球阀由防爆电动执行机构和O型切断球阀组成种球体绕垂直通首轴旋转90度的阀门,适用于高性能自动化控制两位切断、调节的场合。输入4-20mA信号及220VAC电源即可控制运转。防爆等级BT4,质量稳定,防爆性能好,可用于防爆场合,煤矿地面及非采掘工作面,专业级MA煤安产品。该产品广泛用于易燃易爆等场所,如沼气、煤气、煤矿等等。  

    二、矿用本安型防爆电动球阀功能特点

    1、具有限位?;すδ埽乐沟缁汉?,球阀开启或关闭时间短,在4S左右即可完成动作,并且开启或关闭后,电动球阀电机处于断电待机状态,增加了其使用寿命工作,工作更加稳定可靠。
    2、阀门机构与阀体连杆上端增加了油封,下端增加了“O”形橡胶密封圈及两个排水孔,确保电动球阀控制线路腔体内无任何进水现象,从而保证即使在阀门水平放置时也能正常工作,同时控制线路腔体有传统的圆柱形更改为长方体,占用空间小,方便在狭小空间内安装。
    3、电动球阀外壳增加手动旋转开关,在停电或需测试水源水压、特殊喷雾要求时,可人工关闭或打开水路,方便使用。
    4、电动球阀的阀体所用球体面积大,增加了密封面积,保证不会漏水。球体采用不锈钢制作,抗腐蚀能力增强,不易因锈蚀而损坏。


    三、矿用本安型防爆电动球阀技术参数

    1、工作电压: 12-24VDC;
    2、 工作电流: ≤50mA;
    3、 水压适应范围:0.2MPa~7.0MPa;
    4、 供水温度范围:0℃~+60℃;
    5、电动球阀打开时间小于4s,关闭时间小于4s;
    6、球阀通径:15mm;
    7、 防爆型式:矿用本质安全型;
    8、防爆标志:ExibI。


    四、矿用本安型防爆电动球阀选型指南

    1、电动球阀的工作电压的要求;
    2、进水口径的大??;
    3、控制信号的输入是高电平还是低电平。

     
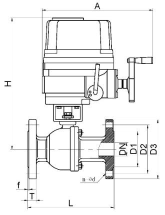
  • 五、矿用本安型防爆电动球阀主要尺寸


  • 六、矿用本安型防爆电动球阀结构图

    矿用本安型防爆电动球阀

上一篇:防爆电动法兰衬氟球阀 / 下一篇:bq941f防爆电动球阀